Harts House
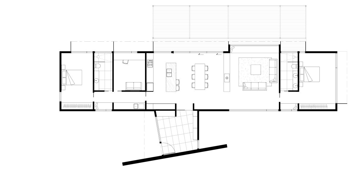
Harts House is a highly efficient, sustainable, 193m-square three-bedroom modular Lifehouse with a mezzanine in BR3 for a home office, yoga, art or whatever takes your fancy!
The Harts House set of drawings can be purchased as an exclusive design package that includes:
- Full set of documentation drawings
- Site Plan*
- Engineering*
- Energy Rating*
- Specifications / Interior colour package
This design package is an affordable and time-saving option, with fully documented drawings ready for you to submit to town planning or ready to go for a building permit. The Hart House is priced at $5,000 (ex GST).
Click HERE for more information about this design.
