Hill House
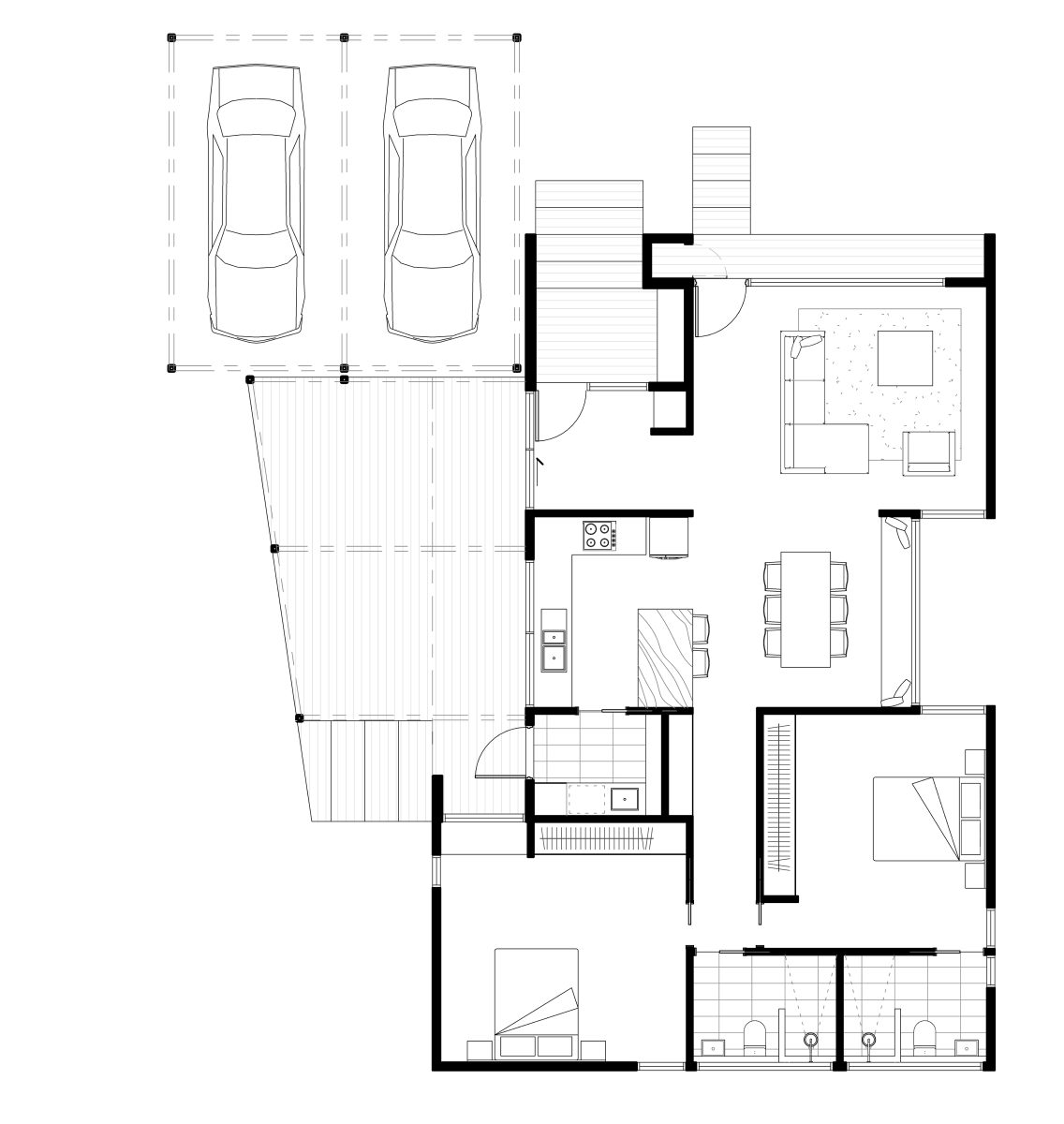
Hill House is a highly efficient, sustainable and unique open-plan 121m-square design comprising 2 bedrooms, 2 bathrooms and a deck/pergola for outdoor entertaining. This design is suited to a flat to gently sloping block.
Documented drawings for our Hill House design can be purchased as an exclusive design package that includes:
- Full set of documentation drawings
- Site Plan*
- Engineering*
- Energy Rating*
- Specifications / Interior colour package
This design package is an affordable and time-saving option, with fully documented drawings ready for you to submit to town planning or ready to go for a building permit. The Hill House is priced at $5,000 (ex GST). *Customised to your site, and certificate issued (as required).
Click HERE for more information about this design.
